HUDA/HSVP Plots

Sector 37, Gurgaon.
Government plots available
property

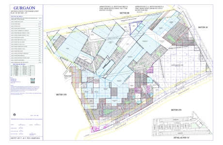
Haryana Shahari Vikas Pradhikaran allots HUDA/HSVP Government Plots in Sector 37, Gurgaon as prime options for residential and industrial purposes through regulated procedures. Sector 37C holds a large area divided into spaces meant for living, group housing, businesses, and institutions. These plots become available via draws, auctions, or resale, which ensures fair processes and adherence to local development rules.
The government-designed area in Sector 37C, Gurgaon spans about 154.85 acres. Out of this, 50.6 acres are set aside to provide plots, while the rest is allocated to roads, schools green spaces, group housing, and other facilities. Most of the HUDA plots in this sector are for residential use. Their sizes range from 120 square yards, which equals about 1,044 square feet, up to over 500 square yards, or more than 4,500 square feet. A few industrial and commercial plots are available here too.


Key Features:

    ● HSVP (HUDA) created it as part of a government master plan.
    ● The area offers residential plots, parks, schools, and commercial spaces.
    ● Plots vary in size starting at 120 sq. yd. and going above 500 sq. yd.; some go up to 1.5 kanal or 810 sq. yd.
    ● The government allocates plots through draws e-auctions, or the resale market.
    ● Infrastructure includes sewage systems, water supply, power lines, sector roads, and green spaces.
    ● It is designed to provide regulated community living with parks and facilities.


Available Facilities:

    ● Clearly marked residential and industrial plots.
    ● Close to schools of all levels old-age care homes and shopping areas.
    ● Spacious internal roads that are 12m 18m, and 75m wide with green belts.
    ● Dedicated areas to provide healthcare, convenience shops and group housing.
    ● Government assistance after possession to handle property registry and mutation.

Availability:

    ● Government notifications decide prices during primary allotment, while the market determines resale values.

    Allotment Process & Rules:

    ● The government allots plots through lotteries or e-auctions, depending on the type of plot. eligible applicants can participate in these processes.
    ● Freehold plots can be resold, but sellers must follow HSVP rules and pay transfer charges.
    ● After finalizing allotments, HSVP or HUDA rules decide when possession and registry will happen.

    Location & Connectivity:

    ● Sector 37C is close to NH-8, Dwarka Expressway, Pace City, and the city center.
    ● The area has wide sector roads, and future metro projects are expected to improve accessibility for residents and industries.
    ● Reputed schools, hospitals, and marketplaces of Gurgaon surround the neighborhood.

    Government plots by HUDA/HSVP in Sector 37C Gurgaon provide legal safety organized growth, and excellent chances to invest. These plots attract both homebuyers and industrial investors in one of Gurgaon's expanding areas.


Conscient Habitat 99A delivers affordable luxury living with government-regulated pricing, premium amenities, and strategic Dwarka Expressway location—ideal for first-time homebuyers and investors seeking quality homes in Gurgaon's growth corridor.